Rustico in vendita

Rovato, Via Silvio Pellico - San Giorgio
€ 340.000
5 locali 5 locali
730 Mq 730 Mq
1 bagno 1 bagno

Rustico in vendita

Rovato, Via Silvio Pellico - San Giorgio

Descrizione annuncio

ROVATO In una tranquilla e riservata zona della frazione di Rovato, proponiamo in vendita esclusiva cascina da ristrutturare, ideale per chi è alla ricerca di ampi spazi, privacy e del fascino delle abitazioni di un tempo. La proprietà si distingue per le generose metrature e per la presenza di una suggestiva corte interna, che rende l’immobile versatile e adatto a molteplici soluzioni abitative.

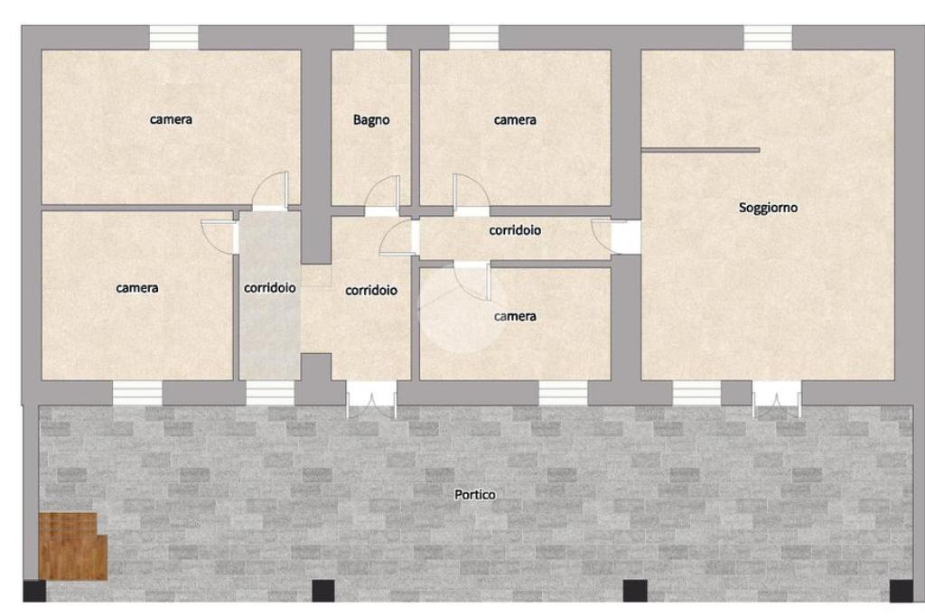
L’accesso avviene tramite un cancello privato che conduce a un ampio giardino di proprietà. Il cascinale principale, sviluppato su due livelli fuori terra, ha una superficie di circa 300 mq. Al piano terra si apre l’abitazione principale, composta da un luminoso soggiorno con cucina open space, valorizzato da un caratteristico soffitto a volte che dona personalità e calore all’ambiente. Attraverso un disimpegno si accede alla zona notte, dove troviamo due spaziose camere matrimoniali e un bagno finestrato con vasca. Un secondo disimpegno, dotato di ingresso indipendente, conduce ad altre due stanze, una attualmente utilizzata come camera da letto e l’altra come ripostiglio, ma con dimensioni tali da poter essere facilmente trasformata in una ulteriore camera matrimoniale.

Dal portico, tramite una scala in legno, si accede al piano primo, dove si sviluppano un ampio fienile e una stanza al rustico, spazi che offrono interessanti possibilità di recupero e personalizzazione. Di fronte al cascinale principale è presente un secondo fabbricato a rustico, disposto su due livelli, con locali un tempo adibiti a stalla al piano terra e spazi a deposito e fienile al piano superiore.

L’intera proprietà si estende su un’area esterna complessiva di circa 850 mq, comprendente la corte interna, il porticato e gli edifici rurali, creando un contesto armonioso e riservato. L’immobile necessita di una ristrutturazione completa, rappresentando una soluzione ideale per famiglie numerose o per chi desidera realizzare due unità abitative, valorizzando il potenziale e l’autenticità di una cascina dal grande carattere.

PER INFORMAZIONI O VISIONARE L'IMMOBILE CONTATTATECI AL NUMERO: 030 138 72 562

DEVI VENDERE O AFFITTARE CASA? NON ESITARE A CONTATTARCI

Mostra tutto

Nelle vicinanze

Trasporto pubblico Trasporto pubblico
stazione di Rovato
stazione di Rovato
2,5 Km
stazione di Rovato Borgo
stazione di Rovato Borgo
2,5 Km
Scuole Scuole
Scuola Primaria Duomo
510 m
Farmacia Farmacia
Farmacia
2,9 Km
Supermercati Supermercati
MiniMarket
640 m
Bar Bar
Bar
1,7 Km
Roll Bar
2,1 Km
Ristoranti Ristoranti
La Vecchia Scuola
660 m
Ristoranti
2,1 Km
Villa Valenca
2,5 Km
La Loggia
2,7 Km
Mostra tutto

Caratteristiche

Rif.:
61170010
Piano:
2 di 2 (Piano su più livelli)
Posti auto:
2
Camere da letto:
3
Arredamento:
Assente
Condizionamento:
Assente
Mostra tutto
Prezzo Prezzo
€ 340.000
Rata mutuo Rata mutuo
€ 1.622 / mese
Spese annue Spese annue
€ 0
Proponi il tuo prezzoProponi il tuo prezzo

Classe Energetica

G
G
G
G
G
G
G
G
G
EP globale non rinnovabile:
150.00 kW h/m² anno
EP globale rinnovabile:
150.00 kW h/m² anno
EP invernale del fabbricato:
EP estiva del fabbricato:
Anno di costruzione:
1960
Riscaldamento:
Autonomo
Tipo impianto:
A stufa
Tipo alimentazione:
Altro

Ti interessa visionare l'immobile?

Fissa un appuntamento  Fissa un appuntamento

Richiedi informazioni

Clicca su Leggi per aprire l'informativa
* Questi campi sono obbligatori

Calcola il tuo mutuo

Semplice e senza impegno
Anticipo

( % )
Mutuo

( % )

pochi semplici passi

inserisci i tuoi dati
Questionario completato
Grazie per aver richiesto un appuntamento senza impegno con un nostro Consulente del Credito e Assicurativo.

Hai inserito correttamente tutti i dati necessari e a breve riceverai una e-mail con un link da convalidare per inviare i tuoi dati.
Affiliato
Immobiliare Rovato Srl
Corso Bonomelli, 4/A 25038 Rovato (BS)

Il nostro staff


  • Giulio Raimondi
    Affiliato

  • Marouane Bannour
    Collaboratore

  • Valentina Uberti
    Coordinatrice
Corso Bonomelli, 4/A 25038 Rovato (BS)
Zona: Rovato e Frazioni
Mostra su mappa
Orari: Lun - Ven 9.00 - 12.30 / 14.30 - 20.00 Sabato 9.00 - 12.30 Pomeriggio 14.30 / 18.00
Affiliato
Immobiliare Rovato Srl
Corso Bonomelli, 4/A 25038 Rovato (BS)

2026 Tecnocasa Franchising S.p.A. - P. IVA 08365160152 - Via Monte Bianco 60/A 20089 Rozzano (MI). Ogni agenzia ha un proprio titolare ed è autonoma. Privacy policy | Policy utilizzo | Cookie policy